Hiilloskatu 1 01
Kohteen kuvaus
Okeroisen rauhallisella, luonnonläheisellä asuinalueella sijaitseva rivitaloyhtiö. Näin suojaisia ja kodikkaita pihapiirejä harvoin rakennetaan. Kohde onkin todella suosittu, jätä hakemus jo nyt!
Kohteen 16 asuntoa on uudistettu vuonna 2017 valmistuneen perusparannusremontin yhteydessä. Asunnot ovat valoisat, siistit ja hyvin varustellut, ja niistä saa sisutettua itselleen mieleisen ja rauhallisen kodin. Omalla terassilla on mukava juoda aamukahvit ja paistatella päivää. Pensaat ja piha-aidat suojaavat mukavasti takapihoja, ja vehreä metsikkö alkaa heti talojen vierestä. Talon asukkailla on käytössään talovarasto ja grillikatos.
Lähikauppaan K-Supermarketiin on matkaa 200 metriä ja koulu sekä päiväkoti sijaitsevat parin kilometrin päässä.
Asumisoikeusasunnossa asut kohtuuhintaisessa asunnossa ja maksat kuukausittaista käyttövastiketta. Asumisoikeusasukkaana pääset halutessasi remontoimaan kodistasi oman näköisen. Sinulla on myös pysyvä asumisturva. Lemmikit ovat tervetulleita Avain Asuntoihin!
Asunnon perustiedot
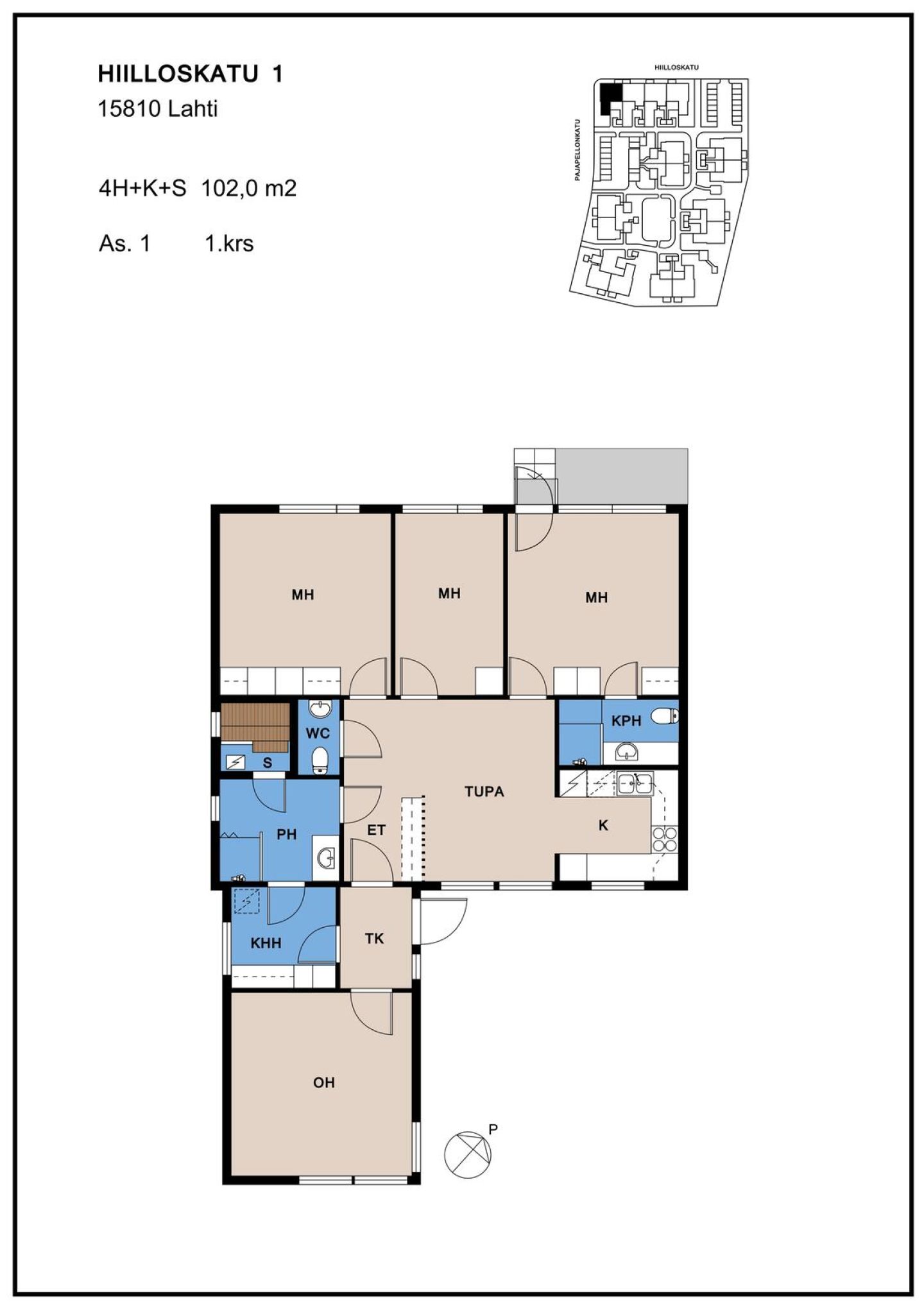
| Osoite | Hiilloskatu 1 01, 15810 Okeroinen - Lahti |
|---|---|
| Huoneistotyyppi | 4H+K+S |
| Asuintilojen pinta-ala | 102,0 m² |
| Kerros | 1/1 |
| Huoneistosauna | Kyllä |
| Irtainvarasto | Kyllä |
Hintatiedot
| Asumisoikeusmaksu | 17 930,52 € |
|---|---|
| Alkuperäinen ASO-maksu | 9 009,44 € |
| Indeksitarkistus | 8 548,58 € |
| Muutostyöt | 372,50 € |
| Vastike | 1 189,72 €/kk |
| Vesimaksutyyppi | Vesiennakko |
| Vesimaksu | 19,00 €/hlö/kk |
| Autopaikan hinta alkaen | 14,00 €/kk |
| Vakuus | 250,00 € |
| Tietoliikenneyhteydet | Taloyhtiölaajakaista Elisa 50/50 Mb/s sis. vastikkeeseen/vuokraan. |
- 040 640 4800
- asiakaspalvelu@avainyhtiot.fi
- Avain Asunnot, Vuorikatu 35 A, 15100 Lahti
Kohteen perustiedot
| Kohteen nimi | Lahden Pajapellonkatu 3 |
|---|---|
| Osoite | Hiilloskatu 1 ja 3, Pajapellonkatu.3, 15810 Okeroinen - LAHTI |
| Asumismuoto | Asumisoikeus |
| Rakennusvuosi | 1993 |
| Rakennuksen tyyppi | Rivitalo |
| Asuntoja | 16 |
| Kerroksia | 1 |
| Energialuokka | E (2007) |
| Lämmitysmuoto | Kaukolämpö |
| Tontin omistus | Oma |
| Antennijärjestelmä | Kaapeli-tv |
| Autopaikkoja yhteensä | 20 |
- 040 640 4800
- asiakaspalvelu@avainyhtiot.fi
- Avain Asunnot, Vuorikatu 35 A, 15100 Lahti