Keltavuokontie 3 A 06
Kohteen kuvaus
Tämän luhtitalon toisesta kerroksesta löytyy nätti kolmio, joka on uusittu täysin pinnoiltaan 2024 valmistuneessa perusparannusremontissa.
Tämän kodin helmi on erillinen keittiö ja komeat saunatilat.
Asunnon kuvaus
Tämän luhtitalon toisesta kerroksesta löytyy nätti kolmio, joka on uusittu täysin pinnoiltaan 2024 valmistuneessa perusparannusremontissa.
Tämän kodin helmi on erillinen keittiö ja komeat saunatilat.
Kohteen kuvaus
Uutelan rauhallisella asuinalueella sijaitseva pienkerrostaloyhtiö.
Kohteesta löytyy 60 m2 kaksioita, 77 m2 kolmioita ja 88 m2 neliöitä. Osassa asunnoista on suojaisa piha-alue, jossa maantason asunnoilla asuntopiha, ja toisen kerroksen asunnoilla tilava parveke. Talon asukkailla on käytössään talovarasto ja ulkoiluvälinevarasto.
Päiväkoti, koulu ja kauppa kävelymatkan päässä ja Gammelbackan palvelut uimarantoineen ja venesatamineen lähistöllä. Lähiympäristössä vesistöä sekä erinomaiset ulkoilumaastot luontopolkuineen. Moottoritielle pääset noin 5 minuutissa ja Helsinkiin pääset moottoritietä pitkin reilussa puolessa tunnissa. Porvoon keskustan palvelut noin 5 km päässä.
Asumisoikeusasunnossa asut kohtuuhintaisessa asunnossa ja maksat kuukausittaista käyttövastiketta. Asumisoikeusasukkaana pääset halutessasi remontoimaan kodistasi oman näköisen. Sinulla on myös pysyvä asumisturva. Lemmikit ovat tervetulleita Avain Asuntoihin!
Kohteen huoneistot on uusittu perusparannusremontissa vuonna 2023-2024.
Asunnon perustiedot
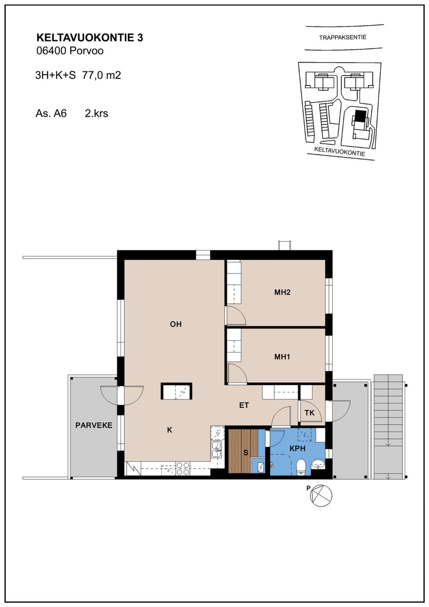
| Osoite | Keltavuokontie 3 A 06, 06400 Uutela - Porvoo |
|---|---|
| Huoneistotyyppi | 3H+K+S |
| Asuintilojen pinta-ala | 77,0 m² |
| Kerros | 2/2 |
| Huoneistosauna | Kyllä |
| Irtainvarasto | Kyllä |
Hintatiedot
| Asumisoikeusmaksu | 30 759,45 € |
|---|---|
| Alkuperäinen ASO-maksu | 18 240,15 € |
| Indeksitarkistus | 12 519,30 € |
| Muutostyöt | 0,00 € |
| Vastike | 1 002,37 €/kk |
| Vesimaksutyyppi | Vesimaksu |
| Vesimaksu | 20,00 €/hlö/kk |
| Autopaikan hinta alkaen | 16,00 €/kk |
| Vakuus | 250,00 € |
| Tietoliikenneyhteydet | Taloyhtiölaajakaista Telia 25/25 Mb/s sis. vastikkeeseen/vuokraan. |
- 040 640 4800
- asiakaspalvelu@avainyhtiot.fi
- Avain Asunnot, Vuorikatu 35 A, 15100 Lahti
Kohteen perustiedot
| Kohteen nimi | Porvoon Keltavuokontie 3 |
|---|---|
| Osoite | Keltavuokontie 3, 06400 Uutela - PORVOO |
| Asumismuoto | Asumisoikeus |
| Rakennusvuosi | 2001 |
| Rakennuksen tyyppi | Luhtitalo |
| Asuntoja | 16 |
| Kerroksia | 2 |
| Energialuokka | D (2018) |
| Lämmitysmuoto | Kaukolämpö |
| Tontin omistus | Oma |
| Antennijärjestelmä | Kaapeli-tv |
| Autopaikkoja yhteensä | 19 |
| Autokatospaikkoja lämmin | 16 |
Kohteen yhteistilat
| Ulkoiluvälinevarasto |
|---|
| Väestönsuoja |
- 040 640 4800
- asiakaspalvelu@avainyhtiot.fi
- Avain Asunnot, Vuorikatu 35 A, 15100 Lahti