Vuoreksen vehreälle ja kehittyvälle alueelle osoitteeseen Vuoreksen puistokatu 55 B valmistuu 26.6.2026, 40 valoisaa ja modernia Avain-vuokrakotia.
Kodit sijoittuvat rauhalliseen Isokuuseen, joka on tunnettu luonnonläheisyydestään ja viihtyisästä arkkitehtuuristaan. Päiväkodit, koulut ja kaupat ovat lähietäisyydellä.
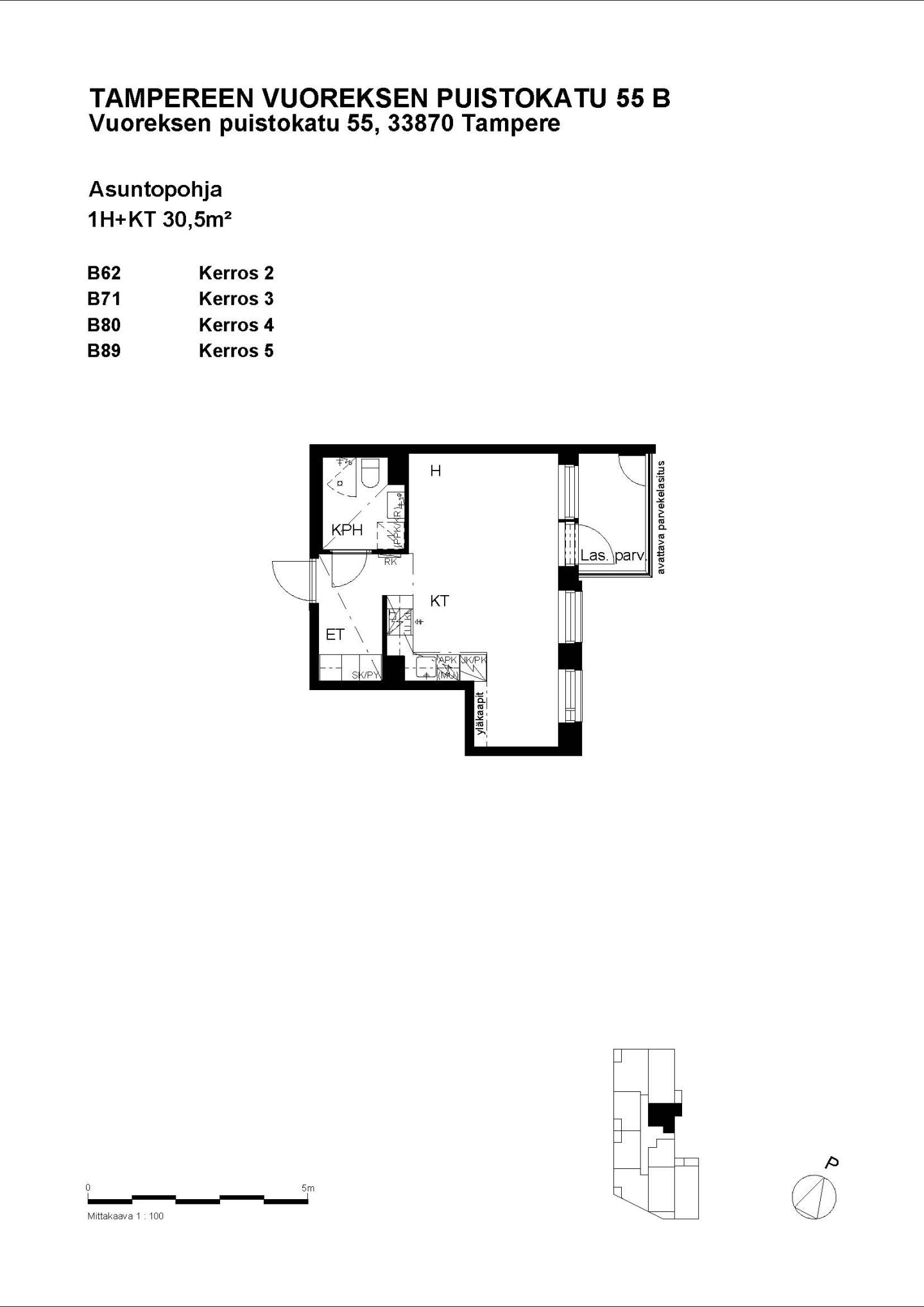
Vaihtoehtoina on viihtyisiä koteja 30 m² yksiöistä 67 m² kolmioihin. Täällä viihtyvät niin yksin asuvat kuin pienet perheetkin.
Kaikissa asunnoissa on laadukkaat pintamateriaalit, valoisat huoneet ja nykyaikaiset keittiökalusteet, jotka tuovat arkeen helppoutta ja harmoniaa.
Suurista ikkunoista suorastaan tulvii luonnonvaloa sisälle. Asuntojen parvekkeet ovat lasitettuja ja tarjoavat viihtyisän lisätilan ympärivuotiseen käyttöön. Hyvät säilytysratkaisut ja modernit kylpyhuoneet viimeistelevät asumismukavuuden.
Kohde on kokonaisuudessaan savuton ja tupakointi on huoneistojen ohella kielletty parvekkeilla sekä koko kiinteistön alueella. Lemmikit ovat tervetulleita Avain Vuokrakoteihin.
Täyttämällä vuokra-asuntohakemuksen voimme tarjota sinulle uuden kodin! Saat tarjouksen sähköpostiisi, mikäli voimme tarjota sinulle asuntoa. Tarkistamme hakijoiden luottotiedot Suomen Asiakastieto Oy:n tietokannasta. Toistaiseksi voimassa oleva vuokrasopimus, kuitenkin vähintään 12 kk.
Asukasvalintaan käytetään tulorajoja. Esimerkki tulorajoista (brutto): 1 aikuinen 3540,00 €/kk, 2 aikuista 6020,00 €/kk. Lisätietoja tulorajoista: https://ohjeet.varke.fi/fi/asukasvalinta/v5/lyhyen-korkotuen-vuokra-asuntojen-asukasvalinta
Asunnon perustiedot
Osoite
Vuoreksen puistokatu 55 B 62, 33870 Vuores - Tampere