Puustellinraitti 3 A 08
Kohteen kuvaus
Oma tontti!
Maalämpö!
Lattialämmitys!
Tsinnian kodit ovat rakenteilla valmistuen arviolta 5/2026. Toimithan ripeästi, sillä vielä ehdit vaikuttaa uuden kotisi materiaaleihin.
Tsinniaan tulee kaikkiaan 32 kpl A-energialuokan kotia, kooltaan 33,5 - 134,0 m2, huoneita yhdestä kolmeen makuuhuoneeseen. Koteja on monipuolisesti aina alimman kerroksen työtilallisista 2-kerrosratkaisuista ylimmän kerroksen parvellisiin asuntoihin, joissa lisätila on hyödynnettävissä monin tavoin esimerkiksi makuutiloiksi, harrastuksia varten tai etätyöpisteeksi.
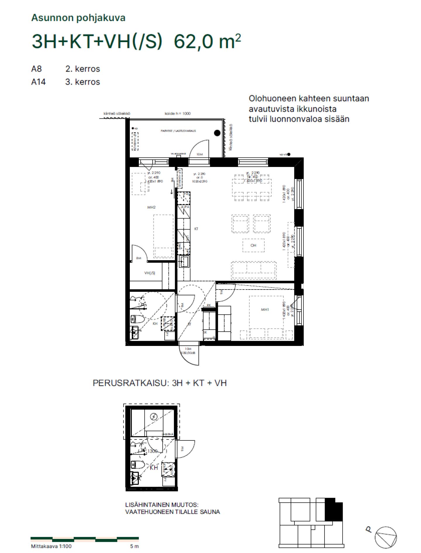
Kaikissa kodeissa on joko iso terassi tai parveke, osalla jopa oma piha. Useissa asunnoissa on oma sauna. Erillisessä piharakennuksessa on ihastuttavan talosaunan ja kerhohuoneen lisäksi huoneistokohtaiset irtainvarastot.
Matkaa Tsinnian kodeista Tuusulan keskustaan on vain n. 2 km. Siellä ovat mm. ruokakaupat, terveyskeskus, kirjasto, koulut ja uimahalli sekä urheilukeskus jää- ja salibandyhalleineen. Golfkentälle matkaa on n. 3 km. Alueen asukkaiden iloina ovat myös päiväkoti leikki- ja liikuntapuistoineen, koirapuisto sekä upeat ulkoilumaastot. Bussilinjat kulkevat Puistometsäntien kautta Tuusulan keskustaan ja Keravan asemalle.
Erikseen myytävät autopaikat sijaitsevat pihalla (osa katoksessa) aivan asuinrakennuksen vieressä. Kaikilla autopaikoilla on mahdollisuus hitaaseen lataukseen.
Turvallinen RS-kohde
Voit sitoumuksetta ensin varata sinua kiinnostavan kodin, jolloin myyntineuvottelijamme ottaa sinuun yhteyttä ja lähettää lisätietoa kohteesta ja asunnosta.
https://avainasunnot.fi/tsinnia
Myynti ja lisätiedot: Jaana Angeria
jaana.angeria@avainyhtiot.fi, 040 738 5858

Asunnon perustiedot
Osoite | Puustellinraitti 3 A 08, 04300 Hyrylä - Tuusula |
---|---|
Huoneistotyyppi | 3H+KT+S |
Asuintilojen pinta-ala | 62,0 m² |
Kerros | 2 |
Huoneistosauna | Kyllä |
Rakennusvuosi | 2026 |
Omistusmuoto | Kyllä |
Rakennusvaihe | Rakenteilla |
Irtainvarasto | Kyllä |

Hintatiedot
Myyntihinta | 95 190,50 € |
---|---|
Lainaosuus | 140 759,50 € |
Velaton hinta | 235 950,00 € |
Hoitovastike | 254,20 €/kk |
Pääomavastike (korko) | 378,53 € |
Pääomavastike (lyhennys ja korko) | 702,83 € |
Neliöhinta | 3 805,65 €/m² |
Autopaikka alkaen | -/kk |
Lisätietoa rahoituksesta
Yhtiölainan lyhennystapa on annuiteetti ja laina-aika 26 vuotta (rakentamisaika + 25 vuotta) Pääomavastikkeella katetaan yhtiölainan kuluja. Mikäli maksat yhtiölainan kokonaan pois, maksat vain hoitovastikkeen ja käyttökorvauksia. Ensimmäinen lainanlyhennys erääntyy n. vuoden kuluttua kohteen valmistumisesta. Ennen yhtiölainan lyhennysosuuden keräämisen aloitusta maksetaan vain yhtiölainan koron osuutta. Pääomavastike on laskettu 12kk Euribor-korolla 2,087%+0,95% marginaalilla (tilanne 17.7.2025. Kokonaiskorko 3,037%). Viitekoron noteerauspäivä määräytyy yhtiölainan ensimmäisen nostopäivän mukaisesti, joka on siis tehty 17.7.2025. Osakkeisiin kohdistuvan lainaosuuden voi kuluitta lyhentää valmistumisen ja hallinnonluovutuskokouksen yhteydessä.

- 040 640 4800
- asiakaspalvelu@avainyhtiot.fi
- Avain Asunnot, Lautatarhankatu 8 B, 00580 Helsinki

Kohteen perustiedot
Kohteen nimi | Asunto Oy Tuusulan Tsinnia |
---|---|
Osoite | Puustellinraitti 3, 04300 Hyrylä - Tuusula |
Asumismuoto | Omistus |
Uudiskohde | Kyllä |
Arvioitu valmistuminen | 29.5.2026 |
Rakennuksen tyyppi | Kerrostalo |
Savuton kohde | Kyllä |
Hissi | Kyllä |
Asuntoja | 32 |
Energialuokka | A (2018) |
Lämmitysmuoto | Maalämpö |
Tontin omistus | Oma |
Antennijärjestelmä | Kaapeli-tv |
Autopaikkoja yhteensä | 36 |
Kohteen yhteistilat
Talosauna |
---|
Kerhohuone |
Kuivaushuone |
Ulkoiluvälinevarasto |
Väestönsuoja |

- 040 640 4800
- asiakaspalvelu@avainyhtiot.fi
- Avain Asunnot, Lautatarhankatu 8 B, 00580 Helsinki