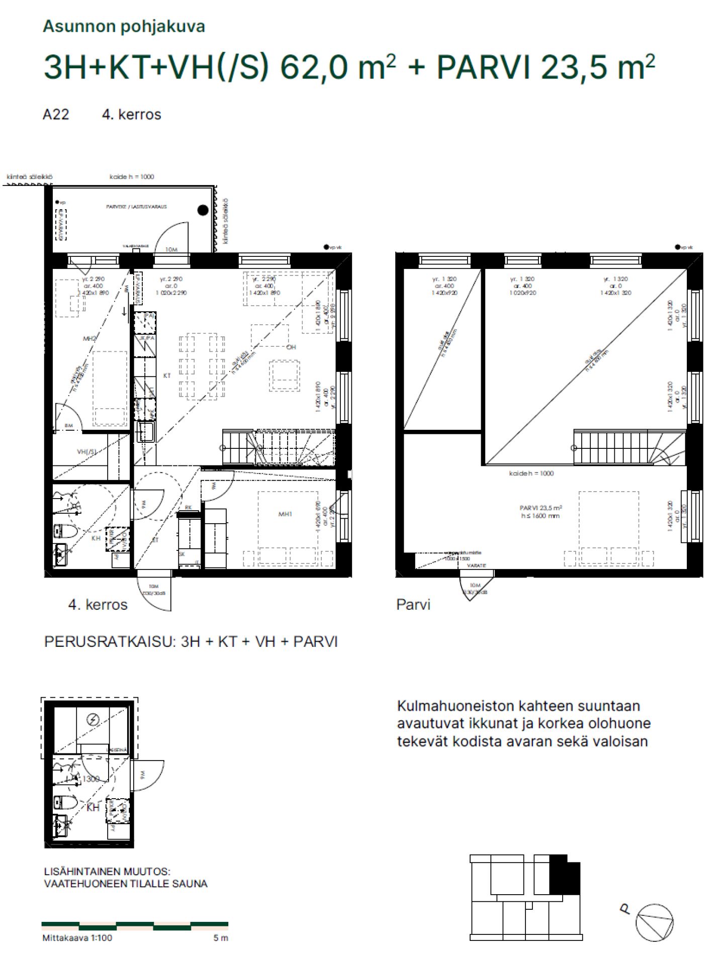
Puustellinraitti 3 A 22
Kohteen kuvaus
TSINNIAN KODIT OVAT RAKENTEILLA JA MYYNNISSÄ!
Oma tontti!
Maalämpö!
Lattialämmitys!
Puustellin keittiöt!
Tuusulan Tsinniaan tulee kaikkiaan 32 kpl A-energialuokan viihtyisää kotia, kooltaan 33,5 - 134,0 m2, huoneita yhdestä kolmeen makuuhuoneeseen. Koteja on monipuolisesti aina alimman kerroksen työtilallisista 2-kerrosratkaisuista ylimmän kerroksen parvellisiin asuntoihin, joissa lisätila on hyödynnettävissä monin tavoin esimerkiksi makuutiloiksi, harrastuksia varten tai etätyöpisteeksi.
Kaikissa kodeissa on joko iso terassi tai parveke, osalla jopa oma piha. Useissa asunnoissa on oma sauna. Erillisessä piharakennuksessa on ihastuttavan talosaunan ja kerhohuoneen lisäksi huoneistokohtaiset irtainvarastot.
Matkaa Tsinnian kodeista Tuusulan keskustaan on vain n. 2 km. Siellä ovat mm. ruokakaupat, terveyskeskus, kirjasto, koulut ja uimahalli sekä urheilukeskus jää- ja salibandyhalleineen. Golfkentälle matkaa on n. 3 km. Alueen asukkaiden iloina ovat myös päiväkoti leikki- ja liikuntapuistoineen, koirapuisto sekä upeat ulkoilumaastot. Bussilinjat kulkevat Puistometsäntien kautta Tuusulan keskustaan ja Keravan asemalle.
Erikseen myytävät autopaikat sijaitsevat pihalla (osa katoksessa) aivan asuinrakennuksen vieressä. Kaikilla autopaikoilla on mahdollisuus sähköauton hitaaseen lataukseen.
Tsinnia on Turvallinen RS-kohde. Asunnot ovat rakenteilla valmistuen arviolta toukokuun lopulla 2026.
Voit sitoumuksetta ensin varata sinua kiinnostavan kodin, jolloin myyntineuvottelijamme ottaa sinuun yhteyttä ja lähettää lisätietoa kohteesta ja asunnosta.
https://avainasunnot.fi/tsinnia
Myynti ja lisätiedot: Jaana Angeria
jaana.angeria@avainyhtiot.fi, 040 738 5858
Asunnon perustiedot
| Osoite | Puustellinraitti 3 A 22, 04300 Hyrylä - Tuusula |
|---|---|
| Huoneistotyyppi | 3H+KT+S+PARVI (n.23,5 m2) |
| Asuintilojen pinta-ala | 62,0 m² |
| Kerros | 4 |
| Huoneistosauna | Kyllä |
| Rakennusvuosi | 2026 |
| Omistusmuoto | Kyllä |
| Rakennusvaihe | Rakenteilla |
| Irtainvarasto | Kyllä |
Hintatiedot
| Myyntihinta | 103 228,00 € |
|---|---|
| Lainaosuus | 152 222,00 € |
| Velaton hinta | 255 450,00 € |
| Hoitovastike | 254,20 €/kk |
| Pääomavastike (korko) | 409,35 € |
| Pääomavastike (lyhennys ja korko) | 760,06 € |
| Neliöhinta | 4 120,16 €/m² |
| Autopaikka alkaen | -/kk |
Lisätietoa rahoituksesta
Yhtiölainan lyhennystapa on annuiteetti ja laina-aika 26 vuotta (rakentamisaika + 25 vuotta) Pääomavastikkeella katetaan yhtiölainan kuluja. Mikäli maksat yhtiölainan kokonaan pois, maksat vain hoitovastikkeen ja käyttökorvauksia. Ensimmäinen lainanlyhennys erääntyy n. vuoden kuluttua kohteen valmistumisesta. Ennen yhtiölainan lyhennysosuuden keräämisen aloitusta maksetaan vain yhtiölainan koron osuutta. Pääomavastike on laskettu 12kk Euribor-korolla 2,087%+0,95% marginaalilla (tilanne 17.7.2025. Kokonaiskorko 3,037%). Viitekoron noteerauspäivä määräytyy yhtiölainan ensimmäisen nostopäivän mukaisesti, joka on siis tehty 17.7.2025. Osakkeisiin kohdistuvan lainaosuuden voi kuluitta lyhentää valmistumisen ja hallinnonluovutuskokouksen yhteydessä.
- 040 640 4800
- asiakaspalvelu@avainyhtiot.fi
- Avain Asunnot, Lautatarhankatu 8 B, 00580 Helsinki
Kohteen perustiedot
| Kohteen nimi | Asunto Oy Tuusulan Tsinnia |
|---|---|
| Osoite | Puustellinraitti 3, 04300 Hyrylä - Tuusula |
| Asumismuoto | Omistus |
| Uudiskohde | Kyllä |
| Arvioitu valmistuminen | 29.5.2026 |
| Rakennuksen tyyppi | Kerrostalo |
| Hissi | Kyllä |
| Asuntoja | 32 |
| Energialuokka | A (2018) |
| Lämmitysmuoto | Maalämpö |
| Tontin omistus | Oma |
| Antennijärjestelmä | Kaapeli-tv |
| Autopaikkoja yhteensä | 36 |
Kohteen yhteistilat
| Talosauna |
|---|
| Kerhohuone |
| Kuivaushuone |
| Ulkoiluvälinevarasto |
| Väestönsuoja |
- 040 640 4800
- asiakaspalvelu@avainyhtiot.fi
- Avain Asunnot, Lautatarhankatu 8 B, 00580 Helsinki