Arinatie 5 B 24
Kohteen kuvaus
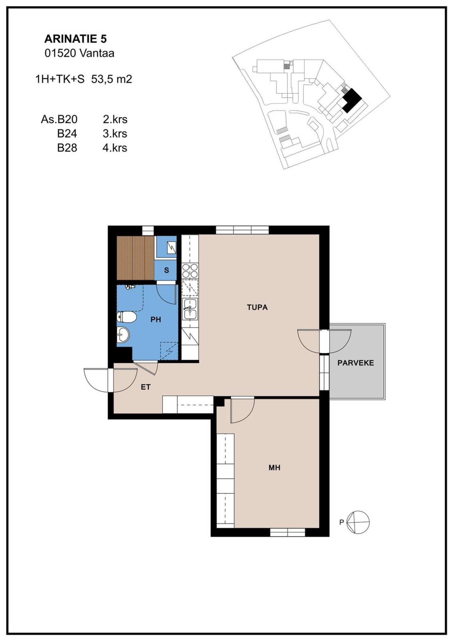
Tämä toisen kerroksen päätyhuoneisto tarjoaa avaran ja miellyttävän asumisympäristön, jossa ikkunat avautuvat kolmeen ilmansuuntaan ja tuovat tilaan runsaasti luonnonvaloa. Lattiat ovat laminaattia, ja pohjaratkaisu on helppo kalustaa arjen eri tarpeisiin. Etelään suuntautuva parveke toimii mukavana lisätilana ulkohetkiin ja oleskeluun. Kokonaisuus tarjoaa rauhallisen kodin päätyasunnon eduilla.
Asunnon kuvaus
Tämä toisen kerroksen päätyhuoneisto tarjoaa avaran ja miellyttävän asumisympäristön, jossa ikkunat avautuvat kolmeen ilmansuuntaan ja tuovat tilaan runsaasti luonnonvaloa. Lattiat ovat laminaattia, ja pohjaratkaisu on helppo kalustaa arjen eri tarpeisiin. Etelään suuntautuva parveke toimii mukavana lisätilana ulkohetkiin ja oleskeluun. Kokonaisuus tarjoaa rauhallisen kodin päätyasunnon eduilla.
Kohteen kuvaus
Viehättävällä ja arkkitehtuuriltaan klassisella Kartanonkosken alueella sijaitseva kaunis jugend-tyylinen kerrostaloyhtiö kaikkien palveluiden ja upeiden ulkoilumaastojen äärellä.
Asunnot ovat valoisia ja pohjaratkaisuiltaan avaria. Asuntoja löytyy toimivista yksiöistä aina lapsiperheille sopiviin neliöihin. Kaikissa asunnoissa on oma sauna ja parveke tai terassi (ei lasituslupaa). Hyvin suunnitelluista asunnoista saa helposti sisustettua itselleen mieleisen ja rauhallisen kodin.
Kohteen asuntojen perusparannus on valmistunut kesäkuussa 2024.
Asukkailla on yhteiskäytössään kuivaushuone ja ulkovälinevarasto.
Kartanonkosken asuinalueesta on pyritty luomaan kylämäinen, mikä näkyy esimerkiksi vehreinä ja yhteisöllisinä piha-alueina. Lapsiystävälliseltä alueelta löytyy koulun ja päiväkodin lisäksi paljon puistoja, kauniit lenkkeilymaastot Vantaanjoen varrella sekä Haltialan kotieläintila. Lähikauppa sijaitsee vain muutaman sadan metrin päässä ja lisäksi kauppakeskus Jumbo, viihdekeskus Flamingo sekä Tammiston palvelut ovat vain lyhyen kävelymatkan päässä.
Julkiset yhteydet alueelta ovat hyvät eri puolille pääkaupunkiseutua. Autoilijan matkaa puolestaan sujuvoittavat lähellä sijaitsevat Tuusulanväylä sekä Kehä III, joiden kautta matkustaminen on nopeaa joka suuntaan.
Asumisoikeusasunnossa asut kohtuuhintaisessa asunnossa ja maksat kuukausittaista käyttövastiketta. Asumisoikeusasukkaana sinulla on pysyvä asumisturva ja pääset myös remontoimaan kotiasi. Lemmikit ovat tervetulleita Avain Asuntoihin.
Asunnon perustiedot
| Osoite | Arinatie 5 B 24, 01510 Pakkala - Vantaa |
|---|---|
| Huoneistotyyppi | 1H+TK+S |
| Asuintilojen pinta-ala | 53,5 m² |
| Kerros | 3/4 |
| Huoneistosauna | Kyllä |
| Irtainvarasto | Kyllä |
Hintatiedot
| Asumisoikeusmaksu | 26 143,99 € |
|---|---|
| Alkuperäinen ASO-maksu | 15 732,31 € |
| Indeksitarkistus | 10 411,68 € |
| Muutostyöt | 0,00 € |
| Vastike | 827,48 €/kk |
| Vesimaksutyyppi | Vesiennakko |
| Vesimaksu | 19,00 €/hlö/kk |
| Autopaikan hinta alkaen | 22,00 €/kk |
| Vakuus | 250,00 € |
| Tietoliikenneyhteydet | Taloyhtiölaajakaista Elisa 50/50 Mb/s sis. vastikkeeseen/vuokraan. |
- 040 640 4800
- asiakaspalvelu@avainyhtiot.fi
- Avain Asunnot, Lautatarhankatu 8 B, 00580 Helsinki
Kohteen perustiedot
| Kohteen nimi | Vantaan Arinatie 5 |
|---|---|
| Osoite | Arinatie 5, 01510 Pakkala - VANTAA |
| Asumismuoto | Asumisoikeus |
| Rakennusvuosi | 2002 |
| Rakennuksen tyyppi | Kerrostalo |
| Hissi | Kyllä |
| Asuntoja | 28 |
| Kerroksia | 4 |
| Energialuokka | D (2012) |
| Lämmitysmuoto | Kaukolämpö |
| Tontin omistus | Oma |
| Antennijärjestelmä | Kaapeli-tv |
| Autopaikkoja yhteensä | 28 |
| Autokatospaikkoja lämmin | 7 |
Kohteen yhteistilat
| Kuivaushuone |
|---|
| Ulkoiluvälinevarasto |
| Väestönsuoja |
- 040 640 4800
- asiakaspalvelu@avainyhtiot.fi
- Avain Asunnot, Lautatarhankatu 8 B, 00580 Helsinki