Peltovuorentie 19 X 45
Kohteen kuvaus
Asunnossa suoritetaan perusparannusremontti 11.5. - 19.6.2026.
Remontissa asuntoihin tehdään sauna-, kylpyhuone-, keittiö-, ja pintakorjauksia, sekä tilat ja kalusteet uusitaan.
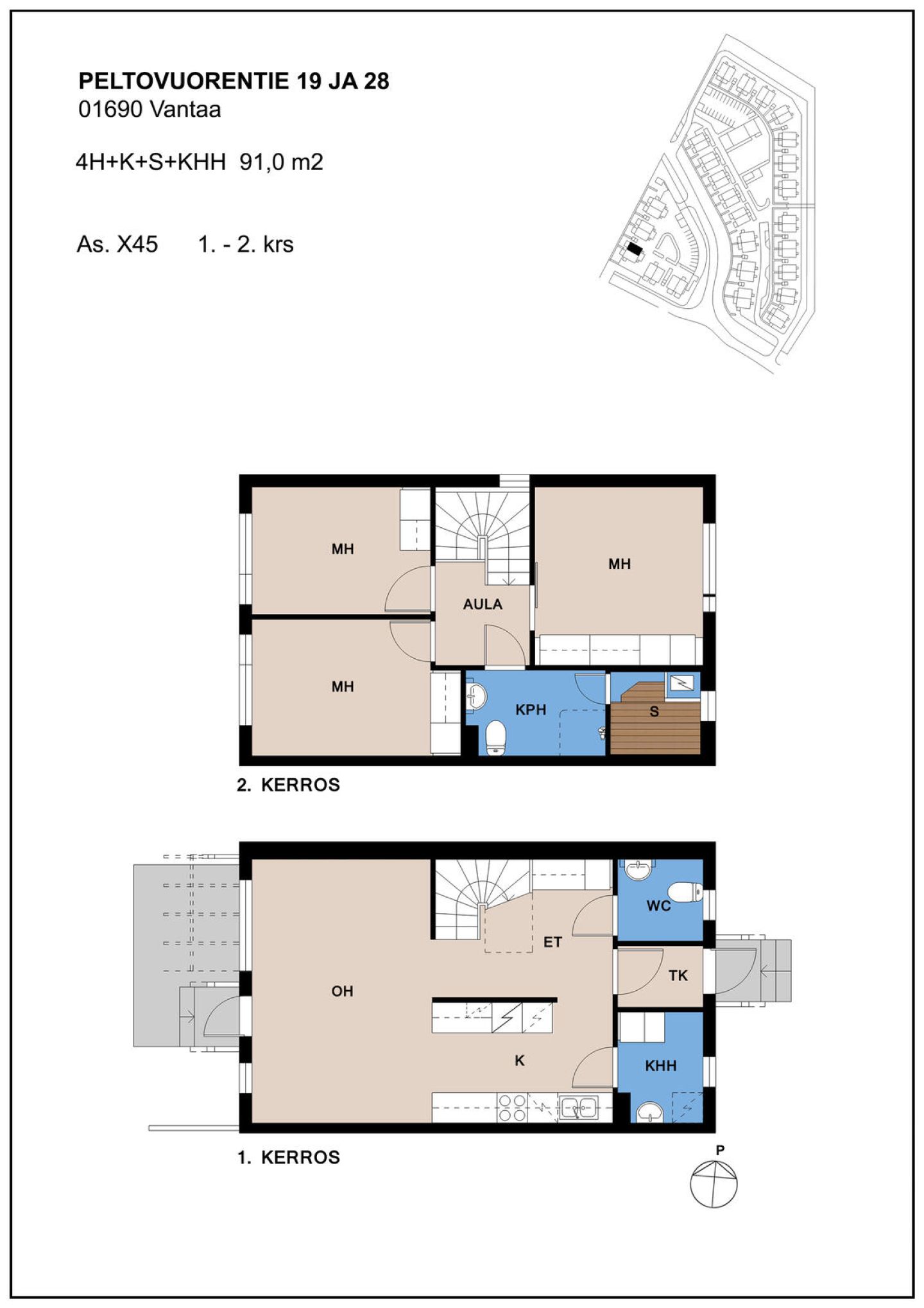
Tämä kaksitasoinen paritalokoti tarjoaa rauhallisen asumisympäristön kahdessa kerroksessa. Alakerrassa sijaitsevat olohuone, keittiö, erillinen wc ja kodinhoitotila, ja olohuoneesta on kulku länteen avautuvalle pihalle. Yläkerrassa on kolme makuuhuonetta, sekä kylpyhuone ja oma sauna. Suuret ikkunat päästävät luonnonvalon kulkemaan tilojen läpi luoden avaran tunnelman.
Koti sopii sinulle, joka arvostat omaa pihaa, rauhallista asumista ja käytännöllistä pohjaratkaisua.
Asunnon kuvaus
Asunnossa suoritetaan perusparannusremontti 11.5. - 19.6.2026.
Remontissa asuntoihin tehdään sauna-, kylpyhuone-, keittiö-, ja pintakorjauksia, sekä tilat ja kalusteet uusitaan.
Tämä kaksitasoinen paritalokoti tarjoaa rauhallisen asumisympäristön kahdessa kerroksessa. Alakerrassa sijaitsevat olohuone, keittiö, erillinen wc ja kodinhoitotila, ja olohuoneesta on kulku länteen avautuvalle pihalle. Yläkerrassa on kolme makuuhuonetta, sekä kylpyhuone ja oma sauna. Suuret ikkunat päästävät luonnonvalon kulkemaan tilojen läpi luoden avaran tunnelman.
Koti sopii sinulle, joka arvostat omaa pihaa, rauhallista asumista ja käytännöllistä pohjaratkaisua.
Kohteen kuvaus
Ylästössä, viehättävällä ja luonnonläheisellä pientaloalueella sijaitseva paritaloyhtiö.
Pohjaratkaisuja on toimivista yksiöistä aina lapsiperheille sopiviin neljän huoneen asuntoihin. Jokaisessa asunnossa on oma sauna, huoneistokohtainen varasto sekä maaterassi. Lisäksi taloyhtiön puistomaisella pihalla lapsilla on tilaa juosta ja leikkiä.
Ylästön ainutlaatuinen sijainti mahdollistaa toimivan arjen, oman rauhan ja upeat ulkoilureitit. Koulun ja päiväkodin lisäksi lähellä on Haltialan kotieläintila, puistot sekä Vantaanjoen ulkoilualue, jotka tekevät sijainnista erityisen. Lähialueella on myös hiihtolatuja, ulkoilureittejä ja aktiviteettejä niin himourheilijalle, koiran omistajalle kuin lapsiperheellekin. Jumbon kauppakeskukseen sekä viihdekeskus Flamingoon on matkaa vain neljä kilometriä ja saman etäisyyden päästä on myös Tammiston monipuoliset palvelut.
Hyvät kulkuyhteydet tekevät pääkaupunkiseudulla liikkumisesta helppoa. Autoilijan matkaa puolestaan sujuvoittavat lähellä sijaitsevat Tuusulanväylä sekä Kehä III, joiden kautta matkustaminen on nopeaa joka suuntaan.
Kaikki asunnot uudistetaan vuoden 2026 aikana kauttaaltaan ja asunnoista remontoidaan perusparannuksen yhteydessä nykyaikaisia ja hyvin varusteltuja. Kun teet sopimuksen ajoissa, pääset valitsemaan sinulle mieluiset pintamateriaalit annetuista vaihtoehdoista. Katso kuvia toteutetuista asunnoista. Vastike ei nouse peruskorjauksesta johtuen.
Asumisoikeusasunnossa asut kohtuuhintaisessa asunnossa ja maksat kuukausittaista käyttövastiketta. Asumisoikeusasukkaana sinulla on pysyvä asumisturva ja pääset myös remontoimaan kotiasi. Lemmikit ovat tervetulleita Avain Asuntoihin.
Asunnon perustiedot
| Osoite | Peltovuorentie 19 X 45, 01690 Ylästö - Vantaa |
|---|---|
| Huoneistotyyppi | 4H+K+S+KHH |
| Asuintilojen pinta-ala | 91,0 m² |
| Kerros | 1 |
| Huoneistosauna | Kyllä |
| Irtainvarasto | Kyllä |
Hintatiedot
| Asumisoikeusmaksu | 38 679,07 € |
|---|---|
| Alkuperäinen ASO-maksu | 23 729,00 € |
| Indeksitarkistus | 14 950,07 € |
| Muutostyöt | 0,00 € |
| Vastike | 1 292,44 €/kk |
| Vesimaksutyyppi | Vesimaksu |
| Vesimaksu | 20,00 €/hlö/kk |
| Autopaikan hinta alkaen | 20,00 €/kk |
| Vakuus | 250,00 € |
| Tietoliikenneyhteydet | Taloyhtiölaajakaista Elisa 50/50 Mb/s sis. vastikkeeseen/vuokraan. |
- 040 640 4800
- asiakaspalvelu@avainyhtiot.fi
- Avain Asunnot, Lautatarhankatu 8 B, 00580 Helsinki
Kohteen perustiedot
| Kohteen nimi | Vantaan Peltovuorentie 19 ja 28 |
|---|---|
| Osoite | Peltovuorentie 19 ja 28, 01690 Ylästö - VANTAA |
| Asumismuoto | Asumisoikeus |
| Rakennusvuosi | 2003 |
| Rakennuksen tyyppi | Paritalo |
| Asuntoja | 50 |
| Kerroksia | 2 |
| Energialuokka | E (2012) |
| Lämmitysmuoto | Maalämpö |
| Tontin omistus | Oma |
| Antennijärjestelmä | Kaapeli-tv |
| Autopaikkoja yhteensä | 50 |
Kohteen yhteistilat
| Talouskellari |
|---|
| Ulkoiluvälinevarasto |
| Väestönsuoja |
- 040 640 4800
- asiakaspalvelu@avainyhtiot.fi
- Avain Asunnot, Lautatarhankatu 8 B, 00580 Helsinki