Naaranpajuntie 22 E 23
Kohteen kuvaus
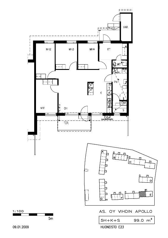
Tämä viiden huoneen koti hyödyntää tilansa selkeästi, ja huonejako palvelee monenlaisia asumistarpeita. Kodin keskiosaan asettuva olohuone yhdistyy keittiön läheisyyteen ja luo toimivan tilan yhteiselle oleskelulle. Terassi tuo mukavasti lisää oleskelutilaa ja avaa mahdollisuuden viettää aikaa ulkona omassa rauhassa.
Asunnossa on kolme makuuhuonetta samalla puolella pohjaa ja yksi erillään, mikä tarjoaa joustavuutta perheen tai työn tarpeisiin. Asunnossa on kaksi wc-tilaa ja oma sauna tuo mahdollisuuden rauhalliseen rentoutumiseen.
Asunnon kuvaus
Tämä viiden huoneen koti hyödyntää tilansa selkeästi, ja huonejako palvelee monenlaisia asumistarpeita. Kodin keskiosaan asettuva olohuone yhdistyy keittiön läheisyyteen ja luo toimivan tilan yhteiselle oleskelulle. Terassi tuo mukavasti lisää oleskelutilaa ja avaa mahdollisuuden viettää aikaa ulkona omassa rauhassa.
Asunnossa on kolme makuuhuonetta samalla puolella pohjaa ja yksi erillään, mikä tarjoaa joustavuutta perheen tai työn tarpeisiin. Asunnossa on kaksi wc-tilaa ja oma sauna tuo mahdollisuuden rauhalliseen rentoutumiseen.
Kohteen kuvaus
Nummelan keskustan palvelujen tuntumassa sijaitseva viihtyisiä rivitaloyhtiö. Kohteessa on asuntoja aina kaksioista viisiöihin, joten monipuolisen asuntojakauman ansiosta kohde sopii hyvin eri elämäntilanteisiin.
Huoneistoissa on laminaattilattiat ja laatoitettu kylpyhuone sekä ilmalämpöpumppu. Asuntoja on sekä yksi- että kaksitasoisia. Oman pihan lisäksi kaksitasoisissa huoneistoissa myös parveke. Asukkaan käytössä maksuton nettiyhteys.
Asukkaiden yhteiskäytössä on ulkoiluvälinevarasto.
Kohde on paraatipaikalla Nummelan keskustan palveluihin nähden. Ruokakaupat, apteekit, terveyskeskus, ravintolat, sekä muut liikkeet löytyvät noin kilometrin säteeltä kotioveltasi. Lähimpään hypermarkettiin on vain puolen kilometrin matka. Alueelta löytyy sekä koulut että päiväkodit kävelyetäisyydeltä. Vihdin lukio ja ruotsinkielinen ala-aste ovat myös kävelyetäisyydellä. Hyvien palvelujen lisäksi muun muassa uimahalli, ulkokuntoilulaitteet ja frisbeegolfrata tarjoavat monipuoliset liikuntamahdollisuudet. Alueelta löytyy loistavat ulkoilumaastot esimerkiksi Nummelanharjulta tai lyhyen ajomatkan päästä Nuuksiosta. Nummelasta löytyy myös ihanat uimarannat järvien rannoilta.
Nummelan linja-autoasemalle on kotioveltasi vain kilometrin matka, josta pääset alle tunnissa Helsinkiin ja puolessa tunnissa esimerkiksi Lohjalle. Autoileva ajaa Nummelasta Espooseen alle puolessa tunnissa ja Helsinkiin vain hieman pidempään.
Asumisoikeusasunnossa asut kohtuuhintaisessa asunnossa ja maksat kuukausittaista käyttövastiketta. Asumisoikeusasukkaana pääset remontoimaan myös kotiasi ja sinulla on pysyvä asumisturva. Lemmikit ovat tervetulleita Avain Asuntoihin.
Asunnon perustiedot
| Osoite | Naaranpajuntie 22 E 23, 03100 Nummela - Vihti |
|---|---|
| Huoneistotyyppi | 5H+K+S |
| Asuintilojen pinta-ala | 99,0 m² |
| Kerros | 1/1 |
| Huoneistosauna | Kyllä |
| Irtainvarasto | Kyllä |
Hintatiedot
| Asumisoikeusmaksu | 44 554,72 € |
|---|---|
| Alkuperäinen ASO-maksu | 32 516,00 € |
| Indeksitarkistus | 12 038,72 € |
| Muutostyöt | 0,00 € |
| Vastike | 1 003,63 €/kk |
| Vesimaksutyyppi | Vesimaksu |
| Vesimaksu | 21,00 €/hlö/kk |
| Autopaikan hinta alkaen | 10,00 €/kk |
| Vakuus | 250,00 € |
| Tietoliikenneyhteydet | Taloyhtiölaajakaista Elisa 50/50 Mb/s sis. vastikkeeseen/vuokraan. |
- 040 640 4800
- asiakaspalvelu@avainyhtiot.fi
- Avain Asunnot, Lautatarhankatu 8 B, 00580 Helsinki
Kohteen perustiedot
| Kohteen nimi | Nummelan Naaranpajuntie 22 |
|---|---|
| Osoite | Naaranpajuntie 22, 03100 Nummela - NUMMELA |
| Asumismuoto | Asumisoikeus |
| Rakennusvuosi | 2010 |
| Rakennuksen tyyppi | Rivitalo |
| Asuntoja | 37 |
| Kerroksia | 1 |
| Energialuokka | F (2012) |
| Lämmitysmuoto | Sähkö |
| Tontin omistus | Oma |
| Antennijärjestelmä | Kaapeli-tv |
| Autopaikkoja yhteensä | 58 |
Kohteen yhteistilat
| Ulkoiluvälinevarasto |
|---|
| Väestönsuoja |
- 040 640 4800
- asiakaspalvelu@avainyhtiot.fi
- Avain Asunnot, Lautatarhankatu 8 B, 00580 Helsinki