Liiketila 2 | Veturitie 24, Pasila
Liiketila Pasilaan paraatipaikalle
Tervetuloa Pasilan paraatipaikalle! Veturitie 24:ssä on nyt tarjolla uutta liike- ja toimistotilaa. Tämä 14-kerroksinen rakennus sijaitsee Keski-Pasilan kehittyvällä alueella, aivan vilkkaan kauppakeskus Triplan läheisyydessä. Rakennus muodostaa läntisen kulmatornin viihtyisästä korttelista ja on osa näyttävien kerrostalojen rivistöä, joka reunustaa Pasilan juna-asemaa.
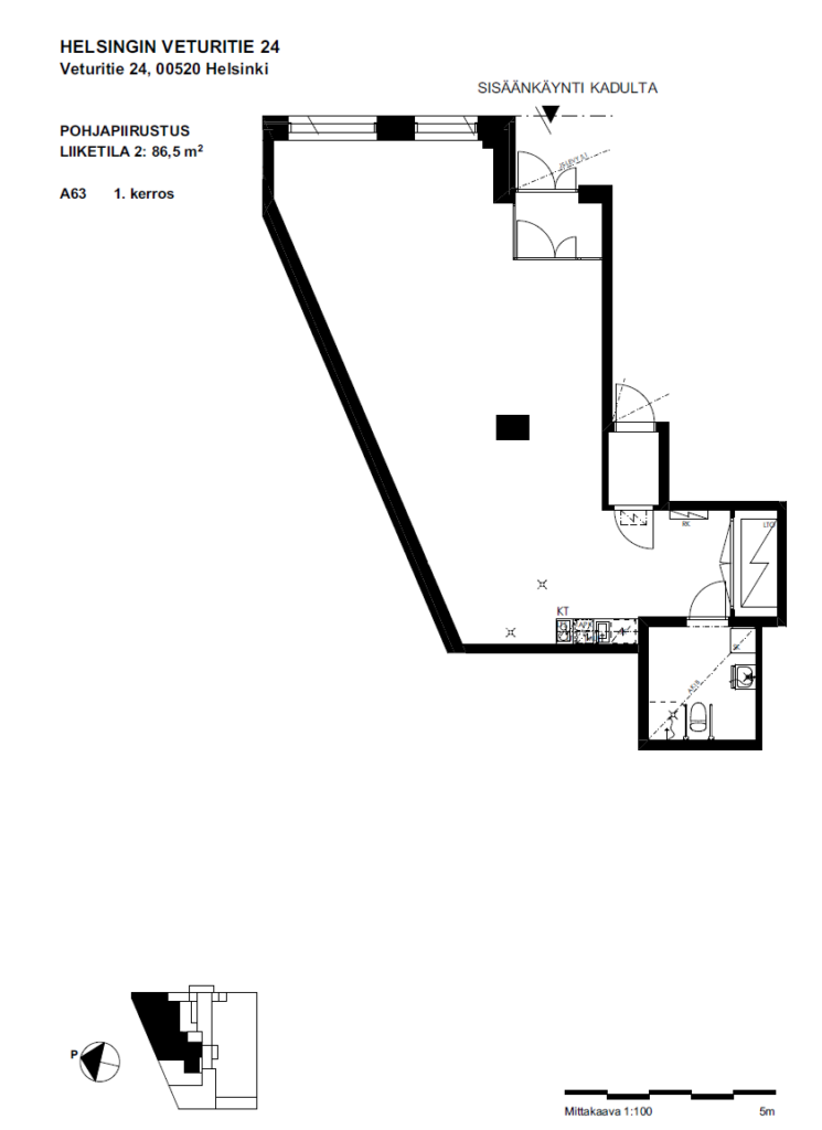
Liiketila 2 | 86,5 m2
Ensimmäisessä kerroksessa sijaitseva tila soveltuu monenlaiseen käyttötarkoitukseen, ja sen ikkunat suuntaavat näkyvälle paikalle Veturitien varrelle. Pasilan rautatieasema ja Kauppakeskus Tripla ovat vain lyhyen kävelymatkan päässä, mikä tekee tästä sijainnista erityisen houkuttelevan.
Tule tutustumaan ja löydä uusi liiketoimintasi koti Pasilan parhaalla paikalla!

Liiketila monenlaiseen käyttöön
- Osoite: Veturitie 24, 00520 Helsinki
- Pinta-ala: 86,5 m2
- Kerros 1 (katutaso)
- Sisäänkäynti kadulta
- Valmistunut: Kevät 2025