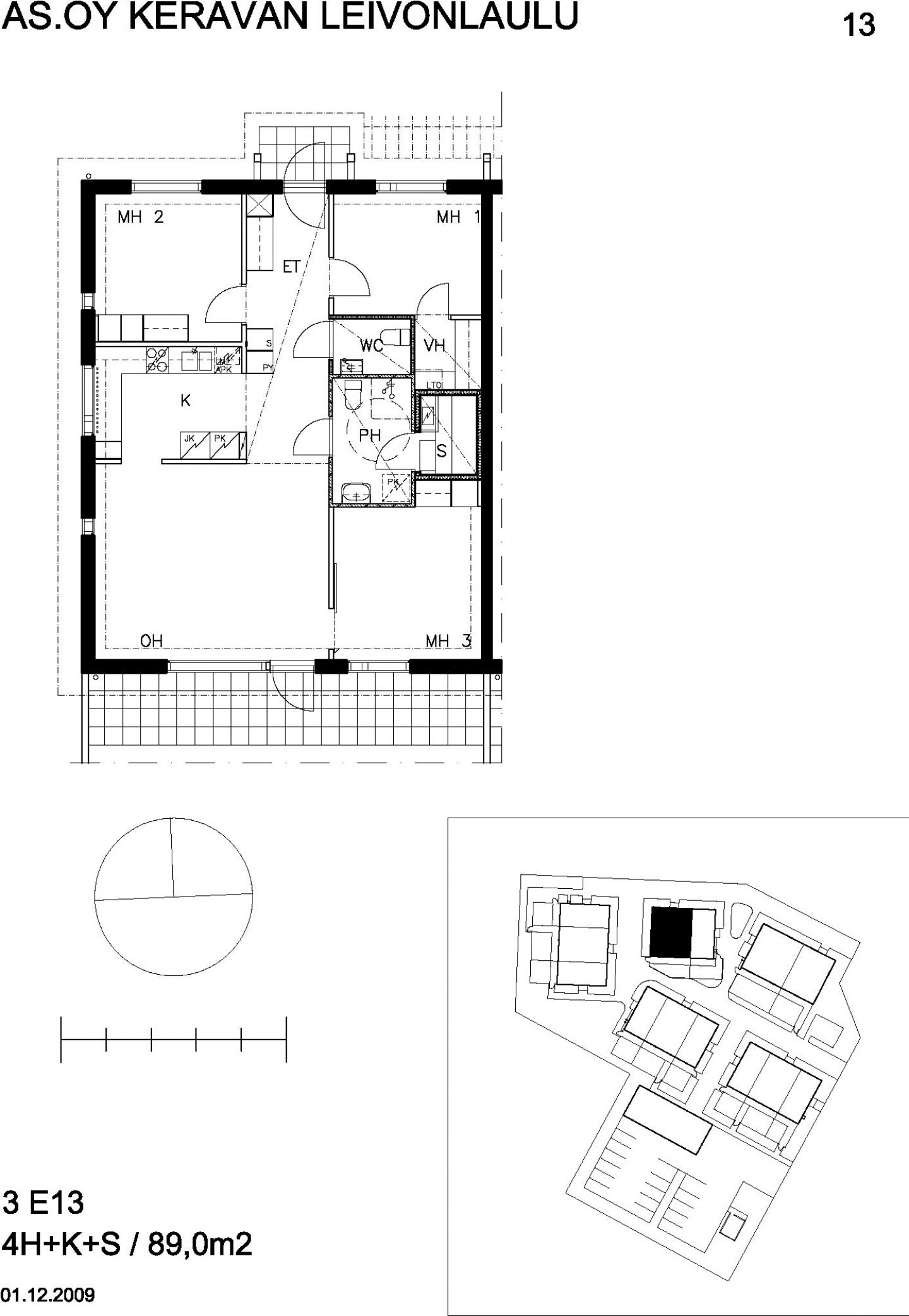
Nelikuja 3 E 13
Kohteen kuvaus
Heti vapaana siisti 1-tasoinen rivi/paritalokoti hurmaavalla aidatulla pihalla, jossa kivoja istutuksia ja terassi.
Kohteen kuvaus
Ahjossa, Sorsakorven rauhallisella ja luonnonläheisellä alueella sijaitseva 2010 valmistunut pari-/rivitaloyhtiö.
Tästä 29 asunnon yhtiöstä löytyy asuntoja kaksioista neliöihin. Kaikissa asunnoissa on oma sauna ja piha. Asukkaiden käytössä maksuton nettiyhteys.
Yhteisessä käytössä on ulkoiluvälinevarasto.
Alueella erinomaiset harrastusmahdollisuudet, Keinukallion ulkoilukeskus, Keravan ratsastuskoulu, frisbeegolfrata sekä Talman rinteet lähellä. Loistavat palvelut Keravan keskustassa, jossa hypermarketti sekä lukuisia pienempiä liikkeitä. Kauppakeskus Karusellissa monipuolisia palveluja.
Keravan sekä Savion juna-asemat muutaman kilometrin päässä, josta pääset Helsinkiin puolessa tunnissa. Hyvien junayhteyksien lisäksi bussipysäkki on vain muutaman sadan metrin päässä kotiovelta.
Asumisoikeusasunnossa asut kohtuuhintaisessa asunnossa ja maksat kuukausittaista käyttövastiketta. Asumisoikeusasukkaana pääset remontoimaan myös kotiasi ja sinulla on pysyvä asumisturva. Lemmikit ovat tervetulleita Avain Asuntoihin.
Heti vapaana siisti 1-tasoinen rivi/paritalokoti hurmaavalla aidatulla pihalla, jossa kivoja istutuksia ja terassi.

Asunnon perustiedot
Osoite | Nelikuja 3 E 13, 04220 Ahjo - Kerava |
---|---|
Huoneistotyyppi | 4H+K+S |
Asuintilojen pinta-ala | 89,0 m² |
Kerros | 1/1 |
Huoneistosauna | Kyllä |
Irtainvarasto | Kyllä |

Hintatiedot
Asumisoikeusmaksu | 40 843,94 € |
---|---|
Alkuperäinen ASO-maksu | 29 844,00 € |
Indeksitarkistus | 10 227,44 € |
Muutostyöt | 772,50 € |
Vastike | 1 205,99 €/kk |
Vesimaksutyyppi | Vesimaksu |
Vesimaksu | 18,00 €/hlö/kk |
Autopaikan hinta alkaen | 9,00 €/kk |
Vakuus | 250,00 € |
Tietoliikenneyhteydet | Taloyhtiölaajakaista Elisa 25/25 Mb/s sis. vastikkeeseen/vuokraan. |

- 040 640 4800
- asiakaspalvelu@avainyhtiot.fi
- Avain Asunnot, Lautatarhankatu 8 B, 00580 Helsinki

Kohteen perustiedot
Kohteen nimi | Keravan Nelikuja 3 ja 4 |
---|---|
Osoite | Nelikuja 3, Nelikuja 4, 04220 Ahjo - KERAVA |
Asumismuoto | Asumisoikeus |
Rakennusvuosi | 2010 |
Rakennuksen tyyppi | Rivitalo |
Savuton kohde | Kyllä |
Asuntoja | 29 |
Kerroksia | 1 |
Energialuokka | E (2012) |
Lämmitysmuoto | Maakaasu |
Tontin omistus | Oma |
Antennijärjestelmä | Kaapeli-tv |
Autopaikkoja yhteensä | 46 |
Kohteen yhteistilat
Ulkoiluvälinevarasto |
---|
Väestönsuoja |

- 040 640 4800
- asiakaspalvelu@avainyhtiot.fi
- Avain Asunnot, Lautatarhankatu 8 B, 00580 Helsinki