Keskeiselle paikalle Turun keskustan kupeeseen rakennetaan 61 uutta Avain vuokra-asuntoa. Nämä uudet kodit valmistuvat 17.6.2026.
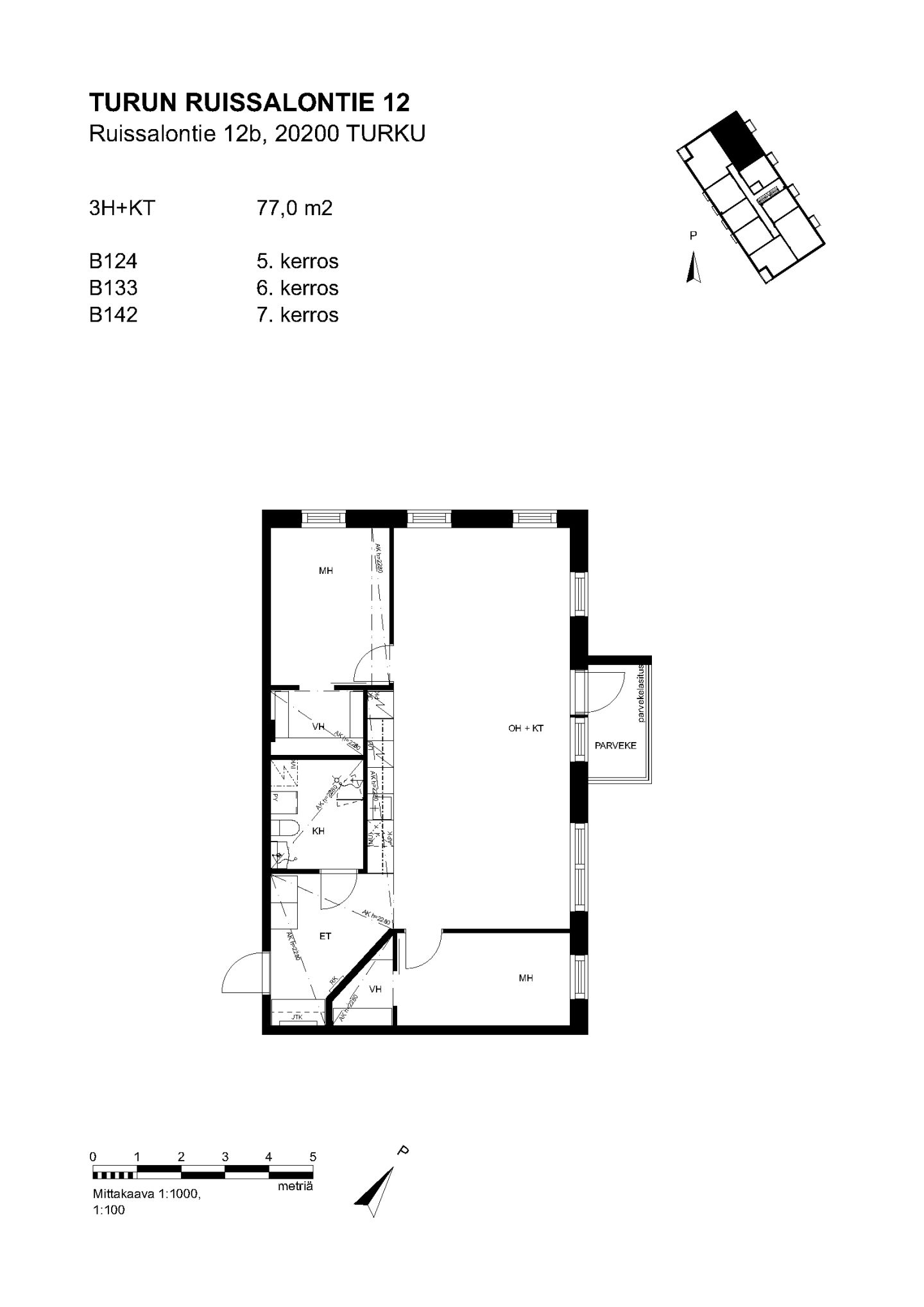
Turun Ruissalontie 12 on osa Kirstinpuiston monimuotoiselle asuinalueelle sijoittuvaa uutta korttelikokonaisuutta. Yhtiön monipuolinen asuntojakauma tarjoaa viihtyisää ja sujuvaa asumista eri elämäntilanteisiin. Useat asunnot avautuvat kahteen ilmansuuntaan, ja lähes kaikissa asunnoissa on joko parveke tai ranskalainen parveke. Ensimmäisen kerroksen kotien mittava huonekorkeus tuo asuntoihin viereisen historiallisen tehdaskiinteistön henkeä. Asunnoissa on kiinnitetty erityistä huomiota tilojen avaruuteen, ja ne ovat monipuolisesti kalustettavissa. Turun Ruissalontie 12:ssa on myös laadukkaat yhteistilat ullakkokerroksessa sekä monipuolisesti erilaisia varastotiloja asukkaiden käyttöön. Asuinkorttelin arkkitehtuuriin on haettu vaikutteita naapurikiinteistön vanhan saippuatehtaan funktionaalisesta tyylistä, ja uusi asuinkortteli ja vanha tehdaskiinteistö muodostavat yhdessä kiinnostavan ja ehyen kokonaisuuden.
Kirstinpuisto on moderni ja kehittyvä kaupunginosa Turussa, joka yhdistää merellisen ympäristön ja urbaanin asumisen parhaat puolet. Alue sijaitsee sataman läheisyydessä, noin kilometrin päässä Turun Linnasta ja alle kahden kilometrin päässä keskustan monipuolisista palveluista. Keskustaan pääsee vaivattomasti esimerkiksi bussilla noin kymmenessä minuutissa, ja liikkuminen sujuu helposti myös pyörällä tai autolla. Alueella arki on sujuvaa, sillä monet tärkeät palvelut löytyvät aivan läheltä.
Asunnot ovat lyhyen korkotuen VARKE-vuokra-asuntoja. Asukasvalintaan käytetään tulorajoja. Esimerkki tulorajoista (brutto): 1 aikuinen 3540,00 €/kk, 2 aikuista 6020,00 €/kk. Lisätietoja tulorajoista: https://ohjeet.varke.fi/fi/asukasvalinta/v5/lyhyen-korkotuen-vuokra-asuntojen-asukasvalinta
Kohteen asunnot ja koko kiinteistön alue on täysin savuton. Lemmikit ovat tervetulleita koteihimme.
Täyttämällä vuokra-asuntohakemuksen voimme tarjota sinulle uuden kodin! Saat tarjouksen sähköpostiisi, mikäli voimme tarjota sinulle asuntoa. Sopimus on toistaiseksi voimassa oleva, kuitenkin vähintään 12 kk. Tarkistamme hakijoiden luottotiedot Suomen Asiakastieto Oy:n tietokannasta.