Törmäkatu 2 b A 17
Kohteen kuvaus
Luonnonläheisellä ja perheystävällisellä Riihelän alueella sijaitsevassa Lahden Lastussa ihania, rauhallisia koteja, useaan eri asumistarpeeseen. Pirttiharjun metsäiset rinteet, Ala-Okeroistentietä reunustavat peltoaukeat sekä perinteikäs Erviänpuisto lampineen tekevät ympäristöstä viihtyisän elää.
Puuverhoillussa kerrostalossa on yhteensä 27 eri elämäntilanteeseen sopivaa asuntoa, yksiöstä neljän huoneen perheasuntoihin. Asunnot ovat laadukkaita ja hyvin varusteltuja, kaikissa huoneistoissa mm. laminaattilattiat, keraaminen liesi ja astianpesukone. Tilava, lasitettu parveke lähes kaikissa asunnoissa antaa tilan tuntua ja jatkaa kesää pitkälle syksyyn. Talon asukkailla on käytössään kuivaushuone, talovarasto ja ulkoiluvälinevarasto.
Bussipysäkki löytyy muutaman sadan metrin päästä.
Mikäli haettavaan asuntoon ei ole hakijajonoa, voi asunnon saada myös varallisuusrajat ylittävä henkilö. Tulot eivät vaikuta asunnon saantiin, eikä yli 55-vuotiailla ole varallisuusrajoja. Asiakaspalvelumme auttaa tarvittaessa hakemuksen kanssa!
Asumisoikeusasunnossa asut kohtuuhintaisessa asunnossa ja maksat kuukausittaista käyttövastiketta. Asumisoikeusasukkaana pääset halutessasi remontoimaan kodistasi oman näköisen. Sinulla on myös pysyvä asumisturva. Lemmikit ovat tervetulleita Avain Asuntoihin!
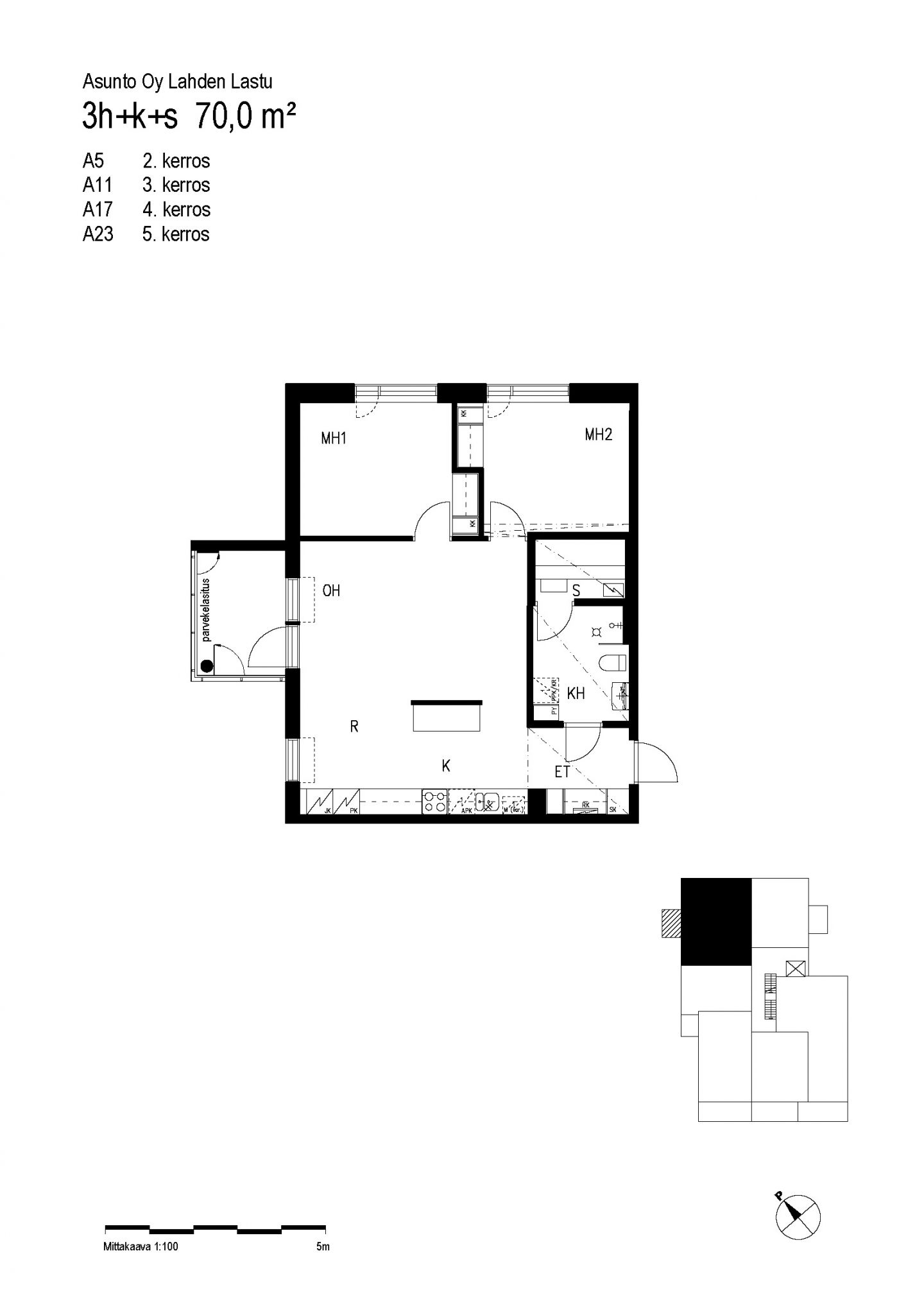
Asunnon perustiedot
| Osoite | Törmäkatu 2 b A 17, 15840 Riihelä - Lahti |
|---|---|
| Huoneistotyyppi | 3H+K+S |
| Asuintilojen pinta-ala | 70,0 m² |
| Kerros | 4/5 |
| Huoneistosauna | Kyllä |
| Parveke | Kyllä |
| Parvekelasitus | Kyllä |
| Irtainvarasto | Kyllä |
Hintatiedot
| Asumisoikeusmaksu | 34 646,25 € |
|---|---|
| Alkuperäinen ASO-maksu | 28 036,02 € |
| Indeksitarkistus | 6 610,23 € |
| Muutostyöt | 0,00 € |
| Vastike | 816,75 €/kk |
| Vesimaksutyyppi | Vesiennakko |
| Vesimaksu | 20,00 €/hlö/kk |
| Autopaikan hinta alkaen | 17,00 €/kk |
| Vakuus | 250,00 € |
| Tietoliikenneyhteydet | Taloyhtiölaajakaista Elisa 50/50 Mb/s sis. vastikkeeseen/vuokraan. |
- 040 640 4800
- asiakaspalvelu@avainyhtiot.fi
- Avain Asunnot, Vuorikatu 35 A, 15100 Lahti
Kohteen perustiedot
| Kohteen nimi | Lahden Törmäkatu 2 b |
|---|---|
| Osoite | Törmäkatu 2 b, 15840 Riihelä - LAHTI |
| Asumismuoto | Asumisoikeus |
| Rakennusvuosi | 2016 |
| Rakennuksen tyyppi | Kerrostalo |
| Hissi | Kyllä |
| Asuntoja | 27 |
| Kerroksia | 5 |
| Energialuokka | C (2012) |
| Lämmitysmuoto | Kaukolämpö |
| Tontin omistus | Vuokra |
| Antennijärjestelmä | Kaapeli-tv |
| Autopaikkoja yhteensä | 28 |
Kohteen yhteistilat
| Kuivaushuone |
|---|
| Ulkoiluvälinevarasto |
| Huoneistokohtaiset varastot |
| Väestönsuoja |
- 040 640 4800
- asiakaspalvelu@avainyhtiot.fi
- Avain Asunnot, Vuorikatu 35 A, 15100 Lahti